Планировка и актуальные цены

Базовый вариант планировки всегда можно изменить обсудить изменения в планировке.
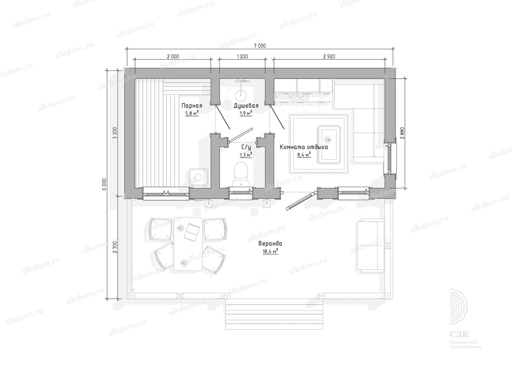
Этаж 1 / код решения Ф36
Теплый контур
Без внутренней отделки
Под ключ
Базовая комплектация под ключ
Под ключ Плюс
Утепленный вариант с дополнительными опциями
* Цены обновлены 25 марта 2026 г.
+7 (996) 194 58 87
Отвечаем на звонки с 09:00
до 19:00 без выходных и
праздников

Фасады

Сохраните ссылку на этот проект или поделитесь с другом

Строим по проекту!

Проект и перепланировка по вашим желаниям входит в стоимость

Трёхуровневый контроль качества работ с реальной гарантией в 24 месяца

Северный лес и собственное производство домокомплекта - без посредников и переплат

Поэтапная оплата строительства, предоплата 20%, строильство начнем уже через 7 дней

Кредитование в ведущих банках и гибкий график финансирования, а так же возможность воспользоваться материнским капиталом

Комплектация и цены

Фундамент

Свайно-винтовой ниже глубины промерзания, размер сваи 108*2500 мм с антикоррозийным покрытием.

Обвязка основания выполнена из профилированного бруса ест. влажности материал хвоя, размером 150x150 мм антисептированный.

Фундамент

Свайно-винтовой ниже глубины промерзания, размер сваи 108*2500 мм с антикоррозийным покрытием.

Фундамент

Утепленная шведская плита с встроенной разводкой коммуникаций и теплого водяного пола по всей площади дома.

Коммуникации

Закладные под коммуникации холодной воды и канализационных труб с утеплением.

Коммуникации

Закладные под коммуникации холодной воды и канализационных труб с утеплением.

Коммуникации

Закладные под коммуникации холодной воды и канализационных труб с утеплением.

Защита от грызунов

Оцинкованная сетка с ячейкой 5 мм по всей площади нижнего перекрытия.

Защита от грызунов

Оцинкованная сетка с ячейкой 5 мм по всей площади нижнего перекрытия.

Защита от грызунов

Оцинкованная сетка с ячейкой 5 мм по всей площади нижнего перекрытия.

Каркас

Каркас несущих стен из строганой доски камерной сушки 45х145 мм, материал хвоя - антисептированная, внутренние перегородки доска 45x95 мм. Изоляция стыков досок каркаса полиэфирным утеплителем. Укосины доска 20х145 мм.

Каркас

Каркас несущих стен из строганой доски камерной сушки 45х145 мм, материал хвоя - антисептированная, внутренние перегородки доска 45x95 мм. Изоляция стыков досок каркаса полиэфирным утеплителем. Укосины доска 20х145 мм.

Каркас

Каркас несущих стен из строганой доски камерной сушки 45х145 мм, материал хвоя - антисептированная, внутренние перегородки доска 45x95 мм. Изоляция стыков досок каркаса полиэфирным утеплителем. Укосины доска 20х145 мм.

Утепление

Несущие стены 150 мм и 100 мм внутренние перегородки, перекрытия и кровля 200 мм. Плитный утеплитель - каменная вата базальтовых пород.

Утепление

Несущие стены 150 мм и 100 мм внутренние перегородки, перекрытия и кровля 200 мм. Плитный утеплитель - каменная вата базальтовых пород.

Утепление

Несущие стены 200 мм и 100 мм внутренние перегородки, перекрытия и кровля 200 мм. Плитный утеплитель - каменная вата базальтовых пород.

Кровля

Кликфальц Grand Line 0,45 Drap TX с пленкой на замках RAL 9005 мокрый асфальт.

Кровля

Кликфальц Grand Line 0,45 Drap TX с пленкой на замках RAL 9005 мокрый асфальт.

Кровля

Кликфальц Grand Line 0,45 Drap TX с пленкой на замках RAL 9005 мокрый асфальт.

Водосток и снегозадержатели

Металлические снегозадержание и водосточная система фирмы Grand Line, в цвет кровли.

Водосток и снегозадержатели

Металлические снегозадержание и водосточная система фирмы Grand Line, в цвет кровли.

Водосток и снегозадержатели

Металлические снегозадержание и водосточная система фирмы Grand Line, в цвет кровли.

Внешняя отделка

Имитация бруса карельский профиль 20x195 мм (сорт АB) материал хвоя, доска 20x195 мм, горизонтальное и вертикальное крепление. Покраска в заводских условиях.

Внешняя отделка

Имитация бруса карельский профиль 20x195 мм (сорт АB) материал хвоя, доска 20x195 мм, горизонтальное и вертикальное крепление. Покраска в заводских условиях.

Внешняя отделка

Имитация бруса карельский профиль 20x195 мм (сорт АB) материал хвоя, доска 20x195 мм, горизонтальное и вертикальное крепление. Покраска в заводских условиях.

Веранда / крыльцо

Колонны - пакет строганой доски камерной сушки, размер доски 45x145 мм, общие размеры колонны 135x145 мм.

Полы, ступени веранды или крыльца: калиброванная доска камерной сушки толщиной 40 мм материал хвоя. Весь пиломатериал выкрашивается в заводских условиях.

Веранда / крыльцо

Колонны - пакет строганой доски камерной сушки, размер одной доски 45x145 мм, общие размеры колонны 135x145 мм.

Полы, террасы, веранды или крыльца: калиброванная доска камерной сушки толщиной 40x145 мм материал хвоя. Весь пиломатериал выкрашивается в заводских условиях.

Веранда / крыльцо

Колонны пакет строганой доски камерной сушки, размер одной доски 45x145 мм, общие размеры колонны 135x145 мм.

Полы, ступени веранды или крыльца: доска профиль Вельвет материал лиственница камерной сушки, размер 28x140 мм, длина доски 4 метра. Весь пиломатериал выкрашивается в заводских условиях.

Дверь входная

Деревянная ель-массив, размеры по полотну 800x2000 мм.

Дверь входная

Дверь металлическая входная с терморазрывом Ferroni Isoterma 860х2050 мм или замена на стеклянную ПВХ.

Дверь входная

Дверь металлическая входная с терморазрывом Ferroni Isoterma 860х2050 мм или замена на стеклянную ПВХ.

Окна

ПВХ профиль Forte 58 2XRenolit два стекла - однокамерные. В парном помещении деревянное окно. Наличники наружные из доски 20x145 мм камерной сушки, внутренние 20x95 мм.

Окна

ПВХ профиль Forte 58 2XRenolit два стекла - однокамерные. В парном помещении деревянное окно. Наличники наружные из доски 20x145 мм камерной сушки, внутренние 20x95 мм.

Окна

ПВХ профиль Forte 58 2XRenolit два стекла - однокамерные, с ламинацией. В парном помещении деревянное окно. Наличники наружные из доски 20x145 мм камерной сушки, внутренние 20x95 мм.

Внутренняя отделка стен и потолков

Не входит в стоимость.

Внутренняя отделка стен и потолков

Имитация бруса карельский профиль 20x145 мм (сорт АB) материал хвоя, в парном помещении вагонка осина Евро сорт А 12,5x96 мм.

Внутренняя отделка стен и потолков

Имитация бруса карельский профиль 20x145 мм (сорт АB) материал хвоя, в парном помещении вагонка осина Евро сорт А 12,5x96 мм.

Полы

Черновые полы внутренних помещений по балкам перекрытия выполнены из плит OSB размером 18x1250x2500 мм.

Полы

Ламинат 33 класса жесткости, уложенный поверх плит OSB. Мокрые зоны - плитка керамическая на бетонной плите (стяжка 50 мм с армирующей сеткой).

Полы

Ламинат 33 класса жесткости. Мокрые зоны - плитка керамическая.

Двери внутренние

Не входят в стоимость.

Двери внутренние

Двери межкомнатные, материал МДФ, цвет по согласованию, размеры 800x2000 мм.

Двери внутренние

Двери межкомнатные, материал МДФ, цвет по согласованию, размеры 800x2000 мм.

Электрика

Электрика не входит в стоимость.

Электрика

Устройство скрытой трехфазной электропроводки, 15 кВт. Монтаж оконечных устройств электрики - розетки, выключатели, светильники.

Электрика

Устройство скрытой трехфазной электропроводки, 15 кВт. Монтаж оконечных устройств электрики - розетки, выключатели, светильники.

Отопление

Отопление помещений эл. конвекторами, в стоимость не входят.

Отопление

Отопление помещений эл. конвекторами, в стоимость не входят.

Отопление

Отопление помещений - теплый пол.

Водоснабжение и канализация

Разводка труб водоснабжения внутри помещений не входит в стоимость.

Водоснабжение и канализация

Скрытая система канализации и водоснабжения с водонагревателем Ariston Velis TECH INOX PW ABSE 100 л (или аналог, не уступающий по характеристикам).

Водоснабжение и канализация

Скрытая система канализации и водоснабжения с водонагревателем Ariston Velis TECH INOX PW ABSE 100 л (или аналог, не уступающий по характеристикам).

Наполнение парного помещения

Не входит в стоимость.

Наполнение парного помещения

Расположение полков в парном помещении согласно схемы планировки – лежачий и сидячий полог, материал осина. Внутренняя отделка стен и потолка - вагонка осина Евро сорт А 12,5x96 мм. Полы плитка керамическая.

Печь дровяная Везувий Легенда Ковка 16 (270) стеклянная дверца и кованый материал топки печи.

Наполнение парного помещения

Расположение полков в парном помещении согласно схемы планировки – лежачий и сидячий полог, материал осина. Внутренняя отделка стен и потолка - вагонка осина Евро сорт А 12,5x96 мм. Полы плитка керамическая.

Печь дровяная Везувий Легенда Ковка 16 (270) стеклянная дверца и кованый материал топки печи.

Scroll
Пиломатериалы камерной сушки собственной заготовки
Все элементы каркаса и перекрытий обработаны антисептиком
Сборка каркакса на оцинкованные ершеные гвозди
Высота потолков в нижней точке 230 см, в верхней 315 см
Укладка утеплителя перекрестным методом

Получите самую подробную спецификацию с ценами и сроками строительства

У вас уже есть проект бани или
понимание планировки?

Любой проект можем адаптировать или спроектируем его «с нуля» по Вашим требованиям. Что бы начать - подойдут схемы начерченные от руки.

Особенности строительства по каркасной технологии

  • Быстрый монтаж

    На возведение дома или бани средних размеров по каркасной технологии уходит всего 1-2 месяца. Строительство можно вести в любое время года. Работы надо останавливать только при температуре ниже -15 °C.

  • Экологичность

    Дома возводятся с использованием натуральных материалов, которые соответствуют санитарным нормам.

  • Отсутствие усадки

    При возведении каркасных строений используется хорошо высушенная древесина, а значит, внутреннюю отделку помещений можно проводить практически сразу же после завершения строительства.

  • Оптимальный микроклимат внутри

    Такие условия обеспечивает натуральное дерево, которое поглощает избыток влаги из воздуха.

  • Отличные показатели теплопроводности

    Вкупе с применением качественных утеплителей это позволяет снизить расходы на отопление зимой и систему кондиционирования летом.

    Каркасные дома быстро прогреваются, поэтому в холодное время года можно отапливать только эксплуатируемые помещения.

  • Главный плюс каркасной технологии – цена. В сравнении с бетонными и кирпичными сооружениями строительство 1 м2 каркасного дома обойдется в среднем дешевле на 30%.

1
2

Посетите производство и строящиеся объекты, и убедитесь в качестве нашего строительства

Приезжайте к нам, организуем экскурсию и лично познакомимся.

Заявка на посещение
+7 (996) 194 58 87
Отвечаем на звонки с 09:00
до 19:00 без выходных и
праздников

Построим баню вашей мечты, в короткие сроки и без раздувания сметы.

Обсудить строильство
+7 (996) 194 58 87
Отвечаем на звонки с 09:00
до 19:00 без выходных и
праздников
22 апреля
Баня-бочка имеет толщину стен всего 45 мм, поэтому неудивительно,...
04 апреля
Поколения сменяют друг друга, меняются предпочтения и образ жизни...
Любовь к бане в нашей стране прошла сквозь века и переросла в нас...
28 февраля
Любовь к бане в нашей стране прошла сквозь века и переросла в нас...
14 февраля
Мобильные бани бывают разными, особой популярностью и спросом пол...
28 января
Хотя баня-бочка позиционируется как баня, которая не требует капи...
22 января
Предлагаем ознакомится с процессом доставки и установки нашей моб...