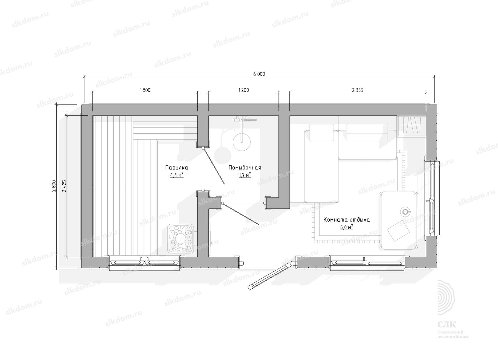
Мобильная баня Лира на три помещения - парная, помывочная (сан. узел) и предбанник.

Комфортное размещение от трех до четырех человек. Сделано по каркасной технологии: в стенах, кровле и в полу 100 мм утеплителя. Комплектация бани - готовая к применению после установки на участке.

Площадь
13 кв. м
Размеры
3x6 м
Жилых комнат
1
Срок строительства
35 дней

Планировка и актуальные цены

Выберите вариант планировки, тот что подойдет именно Вам и вашим домочадцам, или придумайте свою планировку а мы ее реализуем. Цены указаны за комплектацию "под ключ". Смотрите ниже по странице что входит в эту стоимость, а также дополнительные опции.

Этаж 1 / код решения Л600П
Стандарт
Базовая комплектация
* Цены обновлены 25 марта 2026 г.
+7 (996) 194 58 87
Отвечаем на звонки с 09:00
до 19:00 без выходных и
праздников

Фасады

Сохраните ссылку на этот проект или поделитесь с другом

пос. Сосново, Приозерский район

Находимся в 70 км от КАД и доставляем наши бани по всей Ленинградской области

Трёхуровневый контроль качества работ с реальной гарантией в 18 месяцев;

Северный лес и собственное производство пиломатериала - без посредников и переплат;

Поэтапная оплата строительства, сроки изготовления от 24 дней и возможность купить готовую баню уже сегодня;

Проведем экскурсию на производстве в день обращения.

Комплектация и цены

Данная баня предназначена для круглогодичного использования. Каждая баня из нашего каталога сдается заказчику в полностью готовом к принятию банных процедур варианте, внешняя покраска, пологи в парном помещении, печное оборудование и электрика входит в стоимость. Все цены указаны без стоимости доставки, доставка считается отдельно, стоимость уточняйте.

Бетонный блок 200 x 200 x 400 мм, по две штуки на каждую перегородку бани, при подвижных грунтах рекомендуем устанавливать на винтовые сваи, свайное поле предлагаем по запросу, возможен монтаж свай нашими силами.

Обвязка основания корпуса бани выполнена из профилированного бруса ест. влажности материал хвоя, размером 150x100 мм антисептированный. Поверх уложены лаги из строганой доски 40x100 мм камерной сушки с креплением на оцинкованный гвоздь, шаг между поперечными лагами составляет 590 мм, внутрь уложен утеплитель из каменной ваты базальтовой породы толщиной 100 мм, в местах, где располагается слив, укладывается утеплитель экструдированный пенополистирол 100 мм с запениванием швов в местах примыкания к доске.

Защитный слой пароизоляции наружный и внутренний, в парном помещении внутренний слой заменяется на фольгированную пароизоляцию с теплоотражающим покрытием.

Каркас бани выполнен из строганой доски камерной сушки 40х100 мм материал хвоя, с шагом 590 мм. Раскосы, угловые стойки, пояса и верхняя обвязка каркаса выполняются из той же самой доски что и стойки каркаса. 

Внутрь уложен утеплитель из каменной ваты базальтовой породы толщиной 100 мм, внутренние перегородки также заполняются утеплителем как и внешние. Защитный слой пароизоляции наружный и внутренний, в парном помещении внутренний слой заменяется на фольгированную пароизоляцию с теплоотражающим покрытием.

Стропила кровли выполнены из строганой доски камерной сушки 40x100 мм. Внутрь уложен утеплитель из каменной ваты базальтовой породы толщиной 100 мм, снаружи и внутри стропила обшиваются пароизоляцией А и В, в парном помещении внутренний слой заменяется на фольгированную пароизоляцию с теплоотражающим покрытием.

Поверх укладывается доска по длинной части кровли 100x25 мм с шагом 33 см, материал хвоя, ест. влажности. Покрытие кровли - профлист, размер листа 1200х2000 мм, толщина 0,45 мм, цвет на выбор - коричневый, серый, бордовый и зеленый, лобовая доска 200x20 мм камерной сушки, строганая. Покрытие кровли всегда можно заменить на другой материал, цены уточняйте. По краям кровли крепится торцевая планка из оцинкованного металла с полимерным покрытием.

Имитация бруса 20x145 мм (сорт АB) материал хвоя, камерной сушки, с зашивкой по углам строганной доской камерной сушки 20x95 мм. Имитация бруса крепится на контробрешетку (вент. зазор) оцинкованными гвоздями, материал хвоя, ест. влажности, размер 20x45 мм. 

Оконные проемы обрамляются снизу и сверху на высоту корпуса рейками на ширину окна с наличниками с шагом не более 80 мм, размер рейки 20x45 мм материал хвоя, камерной сушки. Наружные наличники из строганой доски 20x145 мм камерной сушки, внутренние наличники и откосы 20x95 мм.

Покрытие корпуса бани - два слоя лессирующей краски с антисептиком, цвета на выбор из каталога, есть доп. опция – заменить лессирующую краску на укрывного типа - стоимость уточняйте. 

Наличники оконные, входная дверь и наличники двери выкрашиваются антисептиком укрывного типа, цвета на выбор. Таким образом в покрытии корпуса бани используется 2 разных цвета.

В парном помещении в базовой комплектации устанавливается деревянное окно 1000x500 мм с двойным стеклопакетом, внешнее стекло может имеет зеркальную поверхность (доп. опция), окно открывается на проветривание.

Если планировка предусматривает отдельное помывочное помещение, в таком случае в это помещение добавляется дополнительное деревянное окно 300x300 мм с двойным стеклопакетом для проветривания. В комнате отдыха - окно ламинированное ПВХ 1000x600 мм двойной стеклопакет, поворотно-откидное.

Дверь входная и внутренние - деревянные, ель массив. Внутренние есть возможность заменить на стеклянные тонированные двери, входную - на металлическую или ПВХ с остеклением. Стоимость смотрите ниже или уточняйте.

Наружные наличники из строганой доски 20x145 мм камерной сушки, внутренние 20x95 мм.

В базовой комплектации стены и потолки всех помещений внутри отделываются вагонкой Штиль хвойных пород принудительной сушки (сорт АВ) размером 12,5x96 мм, с монтажом на финишные гвозди. Вагонка крепится на контробрешетку (вент. зазор) оцинкованными гвоздями, материал хвоя, ест. влажности, размер 25x40 мм. Стыки в углах закрываются рейкой 20x45 мм, материал - хвоя, камерной сушки.

Материал вагонки в любом помещении можно заменить, выбрав к примеру осину, липу или кедровую, цены уточняйте.

Полы - калиброванная доска камерной сушки размером 40x145 мм материал хвоя, с крепление на оцинкованный саморез с заглублением шляпки. Есть возможность замены на лиственницу в отдельности по помещениям, цены уточняйте.

Печь дровяная Везувий с чугунной дверцей, изображена на фото, топка в базовой комплектации осуществляется из парного помещения (топку есть возможность вынести за стену - доп. опция, также печь можно заменить на любую другую, даже электрическую). Защита от нагрева на полу и стене – плита огнезащитная Минерит, толщина 1 см. Камни печные Габбро-диабаз 40 кг для верхней загрузки печи (общая вместимость печи 120 кг, укладываются по бокам, есть возможность заказать под полную загрузку).

Бак с краном для горячей воды 55 литров, располагается на трубе и нагревается от печи – материал нержавеющая сталь. Дымоход - сэндвич труба с искрогасителем на крыше.

Базовое наполнение бани включает в себя установку пологов в парном помещении согласно схемы планировки – лежачий и сидячий полог. Сидячий глубина 45 см высота 43 см, лежачий - глубина 70 см, высота 90 см. Сидячий полог может быть выдвижным - доп. опция, стоимость уточняйте.

Все пологи в базовой комплектации изготовлены из выбранной древесины хвойных пород без смоляных каналов камерной сушки (влажностью не более 16%), можно заменить на материал осина или липа, стоимость уточняйте.

Комната отдыха в наполненении свободной планировки, на схеме приведен пример размещения мебели. Мебель в стоимость не входит и расчитывается отдельно. 

В каждом помещении влагозащитный светодиодный светильник, разводка - провод NYM 2x1,5 с креплением на клипсы, двойная розетка в комнате отдыха, выключатель двухклавишный с выводом на влагозащищенный щиток с автоматом.

Отверстие под слив воды выполняется в помывочном отделении в которое установлена пластиковая труба с воронкой размер трубы 11 см, если помывочное отделение отсутствует - слив размещается в парном отделении или в помывочном отделении, если такое пристуствует на плане. Работы по отводу воды выполняются заказчиком. Края отверстия обрабатываются антисептиком.

Гарантийный срок эксплуатации продукции и входящих в него инженерных систем, оборудования составляет 12 месяцев с момента подписания Заказчиком акта приема-передачи выполненных работ, при условии соблюдения Заказчиком рекомендаций по эксплуатации продукции. Информация по эксплуатации является неотъемлемой частью договора.

Стоимость
Загружаем цену...
обновлено 25 марта 2026 г.
+7 (996) 194 58 87
Отвечаем на звонки с 09:00
до 19:00 без выходных и
праздников

Только сухой пиломатериал и оцинкованный крепеж!

Мы НЕ удешевляем конструкцию для создания более привлекательной цены!

Доступные кредиты от ведущих банков

Получить консультацию

Особенности строительства по каркасной технологии

  • Быстрый монтаж

    На возведение дома или бани средних размеров по каркасной технологии уходит всего 1-2 месяца. Строительство можно вести в любое время года. Работы надо останавливать только при температуре ниже -15 °C.

  • Экологичность

    Дома возводятся с использованием натуральных материалов, которые соответствуют санитарным нормам.

  • Отсутствие усадки

    При возведении каркасных строений используется хорошо высушенная древесина, а значит, внутреннюю отделку помещений можно проводить практически сразу же после завершения строительства.

  • Оптимальный микроклимат внутри

    Такие условия обеспечивает натуральное дерево, которое поглощает избыток влаги из воздуха.

  • Отличные показатели теплопроводности

    Вкупе с применением качественных утеплителей это позволяет снизить расходы на отопление зимой и систему кондиционирования летом.

    Каркасные дома быстро прогреваются, поэтому в холодное время года можно отапливать только эксплуатируемые помещения.

  • Главный плюс каркасной технологии – цена. В сравнении с бетонными и кирпичными сооружениями строительство 1 м2 каркасного дома обойдется в среднем дешевле на 30%.

1
2

Посетите производство и строящиеся объекты, и убедитесь в качестве нашего строительства

Приезжайте к нам, организуем экскурсию и лично познакомимся.

Заявка на посещение
+7 (996) 194 58 87
Отвечаем на звонки с 09:00
до 19:00 без выходных и
праздников

Прочий размерный ряд

Мобильная баня Корунд 600 / длина 6 метров, три секции
от 1 020 000 руб.
Мобильная баня Барн 600КС / длина 6 метров, три секции, панорамное остекление
от 1 074 000 руб.
Мобильная баня Барн 600 / длина 6 метров, три секции
от 1 020 000 руб.

Построим баню вашей мечты, в короткие сроки и без раздувания сметы.

Обсудить строильство
+7 (996) 194 58 87
Отвечаем на звонки с 09:00
до 19:00 без выходных и
праздников
22 апреля
Баня-бочка имеет толщину стен всего 45 мм, поэтому неудивительно,...
04 апреля
Поколения сменяют друг друга, меняются предпочтения и образ жизни...
Любовь к бане в нашей стране прошла сквозь века и переросла в нас...
28 февраля
Любовь к бане в нашей стране прошла сквозь века и переросла в нас...
14 февраля
Мобильные бани бывают разными, особой популярностью и спросом пол...
28 января
Хотя баня-бочка позиционируется как баня, которая не требует капи...
22 января
Предлагаем ознакомится с процессом доставки и установки нашей моб...